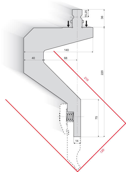
תפסניות למד